草屯近中投公路全新電梯雙車美墅
2680
萬
34.07
萬/坪
詳細資料
周邊
特色說明
地圖街景
實價登錄
宏觀開發集團草屯店
(極利地產有限公司)
049-2224888
預約看屋
線上提問
草屯近中投公路全新電梯雙車美墅
BH2322
0492224888
預約
提問
服務據點🚩
經紀人員🤝
Google搜尋
一般會員
帳號
此欄位必填!
密碼
此欄位必填!
登入
送出註冊/登入視同您已閱讀,並同意
權利義務說明內容
註冊
|
忘記密碼
此欄位必填!
此欄位必填!
此欄位必填!
登入
忘記密碼
|
忘記密碼
Email
簡訊
請您輸入店代號及帳號,我們會儘速將您的密碼傳送至您的信箱或手機簡訊。
店代號
帳 號
送出
宏觀集團
[首頁]
首頁↟
出售
出租
活動
報導
關於
據點
沿革
經紀人員
徵才
買方稅費
賣方稅費
留言📢
留言📢
買屋
/
南投縣
/
草屯鎮
/
草屯近中投公路全新電梯雙車美墅
請注意,上方物件照片如有街景,為物件附近環境介紹,非物件本身。
編號:
BH2322
複製分享
2680
萬
(含車位價)
34.07
萬/坪
貸款試算
格局
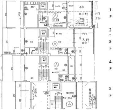
6房 3 廳 6 衛
格局
屋齡
1.5 年
屋齡
權狀坪
78.67 坪
權狀坪
地址
草屯鎮新庄一路
型態/類別
透天 /住家
樓別/樓高
1-5 /
主+附
78.67 坪
地坪
33.3 坪
宏觀開發集團草屯店
(極利地產有限公司)
南投縣草屯鎮太平路一段57號
049-2224888
立即預約看屋
線上提問
先生
小姐
方便聯絡時間
皆可
早上
下午
晚上
預約看屋
先生
小姐
線上提問
物件詳細資料
點閱次數:165次
房屋資訊
車位/備註
私有 車庫停雙車
入門朝向
座西南 朝東北
使用分區
鄉村區
現況
空屋
面臨路寬
5 米
建築結構
鋼筋混凝土造
謄本資料
主建物
73.08 坪
附屬建物
5.58 坪
公共設施
車位坪
地下室
地坪
33.3 坪
謄本主要用途
住宅、樓梯間
*小數點取二位第三位無條件捨去
特色說明
全新電梯雙車位透天,地點絕佳
近中投、草屯市區、學區超商, 市區採買都在附近,生活機能便利
房屋共6間房,5間套房 適合大家庭一同共住
電梯直達頂樓,衛浴間間都開窗 使用坪高達79坪
環境清幽不吵雜,適合移居好所在
地圖街景建置中
實價登錄